Kochanowskiego budynek 1 - plan

Znajdź swoje mieszkanie

Osiedle Kochanowskiego

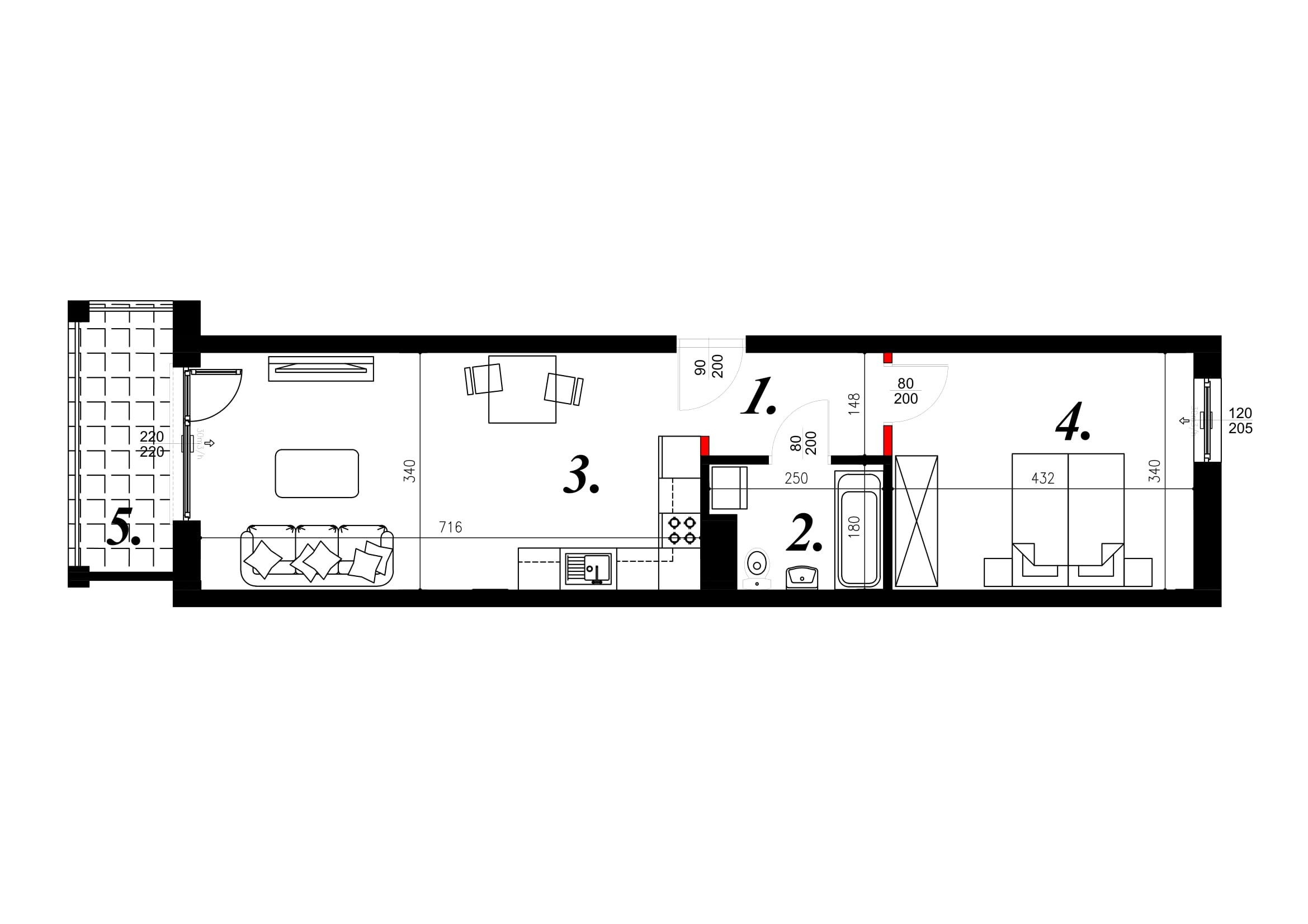
Mieszkanie nr 61

Cena: 436 496 zł
Cena za m²: 9 450 zł
Dostępne
Przedpokój 3,76 m2
Łazienka 3,94 m2
Pokój z aneksem kuchennym 24,03 m2
Sypialnia 14,46 m2
Balkon 4,89 m2
Powierzchnia całkowita 46,19 m2
Więcej mieszkań

OSIEDLE Kochanowskiego

Twoje miejsce spokoju i
aktywnego wypoczynku

Osiedle Kochanowskiego

Osiedle Kochanowskiego w Sochaczewieto eleganckie osiedle , które powstaje w śródmieściu Sochaczewa przy ul. Jana Kochanowskiego. Dla naszych Klientów oprócz prestiżowej i wygodnej lokalizacji, przeznaczone mamy 72 mieszkania w 1 etapie od 40,27m2 do 59,28m2, 67 miejsc postojowych w hali garażowej, miejsca postojowe naziemne oraz 70 komórek lokatorskich i nowoczesne windy. Kompleks będzie miał własny dziedziniec.

Osiedle Kochanowskiego to pierwsza tego typu inwestycja w Sochaczewie. Oprócz walorów związanych z lokalizacją swoich klientów chcemy przyciągnąć różnorodnością oferty, jakością stosowanych materiałów budowlanych i wykończeniowych. Stawiamy na sprawdzone rozwiązania oraz na indywidualizm naszych klientów oferując również mieszkania do aranżacji.

Lokalizacja

Osiedle Kochanowskiego to wymarzone miejsce dla rodziny. Śródmiejska lokalizacja inwestycji powoduje, iż w najbliższej okolicy znajdują się wszystkie niezbędne udogodnienia takie jak szkoły, przedszkola, urzędy, sklepy, przystanki komunikacji miejskiej. Wszystko to w obrębie kilku minutowego spaceru.

Bliskość terenów zielonych to zachęta dla mieszkańców do aktywnego spędzenia czasu na świeżym powietrzu. Mimo, iż jest to ścisłe centrum miasta to dookoła znajduje się bardzo dużo miejsc sprzyjających spacerom oraz aktywnemu wypoczynkowi.

Udogodnienia

Parking

Parking: Na terenie inwestycji zapewnimy miejsca postojowe w podziemnej hali garażowej stanowiące wygodę parkowania dla wszystkich mieszkańców.

Nowoczesna infrastruktura

Nowoczesna infrastruktura: Osiedle Kochanowskiego zostało zaprojektowane z dbałością o detale, a atrakcyjna i nowoczesna architektura podkreśla jej unikalny charakter. Zapraszamy do kontaktu i zapoznania się z naszą ofertą – z pewnością znajdziesz tu swoje wymarzone miejsce do życia.


BLISKO NATURY

Poznaj okolicę

Sprawdź dokładną lokalizację inwestycji Kochanowskiego, aby zobaczyć jak blisko wygodnych udogodnień będziesz mieszkać.

ZAPYTAJ NAS O SZCZEGÓŁY

Zapraszamy do kontaktu

Zapraszamy do kontaktu z naszym dedykowanym doradcą ds. inwestycji, który chętnie udzieli wszelkich informacji na temat Osielda Kochanowskiego, przedstawi dostępne mieszkania i pomoże w wyborze idealnego lokum dla Ciebie.

kontakt
Bartosz Chyczewski

Doradca ds. mieszkań w Sochaczewie

Kontakt

tel. 729 913 013
biuro@grupascotia.pl

Biuro sprzedaży

ul. Kochanowskiego, 96-500 Sochaczew